土地
NEW

山科区音羽草田町 建築条件付き売り土地
3,930万円

音羽草田町 建築条件付土地 歩道付公道に面す

1/8
2/8
3/8
4/8
5/8
6/8
7/8
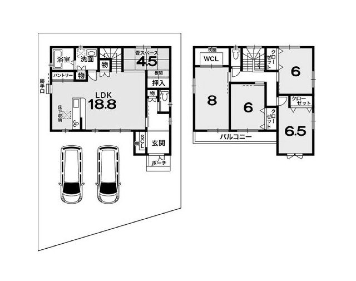
参考プラン建物 床面積123.12㎡ 建物価格(税込)3180万円 8/8

POINT

・長期優良住宅認定・耐震等級3・耐熱等級5
・参考プラン建物面積123.12㎡
・建物価格(税込)3180万円
・別途費用(下記)が必要
 建築確認申請費(税込)99万円
 外構工事費用(税込)121万円
 上下水道ガス引込費用(税込)148.5万円
山科区音羽草田町 建築条件付き売り土地 3,930万円 京都市山科区音羽草田町 京阪京津線「四宮」駅徒歩5分
京都地下鉄東西線「山科」駅徒歩14分
JR東海道・山陽本線「山科」駅徒歩15分
土地157.98m²/
音羽小・音羽中

周辺環境

LOCATION
Loading Google Map...

周辺施設

FACILITY

※「各施設までの所要時間」は80m1分で算出しております。
※当該物件位置にストリートビューが存在しない場合はストリートビュー表示されません。またストリートビューの仕様に依存する為、当該物件と異なる位置で表示される場合がございます。

物件詳細を見る ※リフォームや価格変更の履歴も
ご覧いただけます

物件概要

OUTLINE
物件名
山科区音羽草田町 建築条件付き売り土地
所在地
交通
学校
物件種別
土地
価格
3,930万円
土地面積
157.98m²(47.78坪)
接道
南側5.00m公道に11.14m接道
セットバック
不要
私道負担
なし
建ぺい率
60%
容積率
200%
都市計画
市街化区域
法令制限
準防火地域 20m第1種高度地区 町並み型建造物修景地域
地目
宅地
地勢
平坦
建築条件
建築条件付き
土地権利
所有権
現況
更地
引渡時期
相談/現況渡し
総区画数
1区画
用途地域
第1種中高層住居専用地域
国土法届出
不要
取引態様
仲介
物件番号
100015702
情報更新日
2025年10月26日
次回更新予定日
2025年11月9日
価格変更履歴
-
設備
上水道:公営水道、下水道:本下水、ガス等:都市ガス

※ 図面と現況が異なる場合は、現況を優先とします。
※ 掲載物件は成約済み・売却中止となる場合があります。
※ 成約の際は仲介手数料とこれにかかる消費税が必要です。(当社が売主の物件除く)

お気軽にお問い合わせ
くださいませ

物件お問い合わせ
0120-312-123 0120-312-123
1

類似物件の成約データ

DATA

この物件を類似物件の成約データと比較できます。最新の販売済事例より6件まで表示します。

販売価格
No.100009070 2,480万円
No.100009012 2,500万円
No.100013798 2,680万円
No.100009860 3,390万円
No.100012597 4,198万円
No.100010494 4,280万円
この物件 3,930万円
各物件をクリックすると
下に右側に物件概要が表示されます。
物件概要
この物件
比較する物件
物件番号
100015702
- 100009070 100009012 100013798 100009860 100012597 100010494
成約年月
販売中
- 2018年12月 2019年5月 2024年2月 2019年7月 2023年11月 2020年10月
交通
京阪京津線「四宮」駅徒歩5分
- 京阪京津線「四宮」駅徒歩3分 京阪京津線「四宮」駅徒歩7分 京阪京津線「四宮」駅徒歩5分 京阪京津線「四宮」駅徒歩3分 京阪京津線「四宮」駅徒歩3分 京阪京津線「四宮」駅徒歩7分
町名
音羽草田町
- 四ノ宮岩久保町 音羽草田町 四ノ宮川原町 四ノ宮神田町 四ノ宮大将軍町 四ノ宮泉水町
接道
南側5.00m公道に11.14m接道
- 南側8.20m公道に5.90m接道 南側5.00m道路に7.70m接道 北西側4.95m私道に11.00m接道 他 北側5.00m私道に9.00m接道 北側5.70m私道に5.67m接道 他 西側5.50m公道に14.30m接道
土地面積
157.98m²
- 149.45m² 145.54m² 147.95m² 160.00m² 178.41m² 194.80m²
販売価格
3,930万円
- 2,480万円 2,500万円 2,680万円 3,390万円 4,198万円 4,280万円
坪単価
82.26万円/坪
- 54.87万円/坪 56.8万円/坪 59.89万円/坪 70.05万円/坪 77.8万円/坪 72.65万円/坪
※掲載情報は類似物件との比較です。正確な相場を示すものではありませんので、予めご了承くださいませ。

お問い合わせ

CONTACT
お問い合わせ物件名
NO.100015702  山科区音羽草田町 建築条件付き売り土地
京都市山科区音羽草田町 3,930万円
お問い合わせ内容
当てはまるものを選択してください 
※複数選択可
お名前
フリガナ
メールアドレス
電話番号

周辺の物件情報

OTHERS